Suikerpark

Urbanism

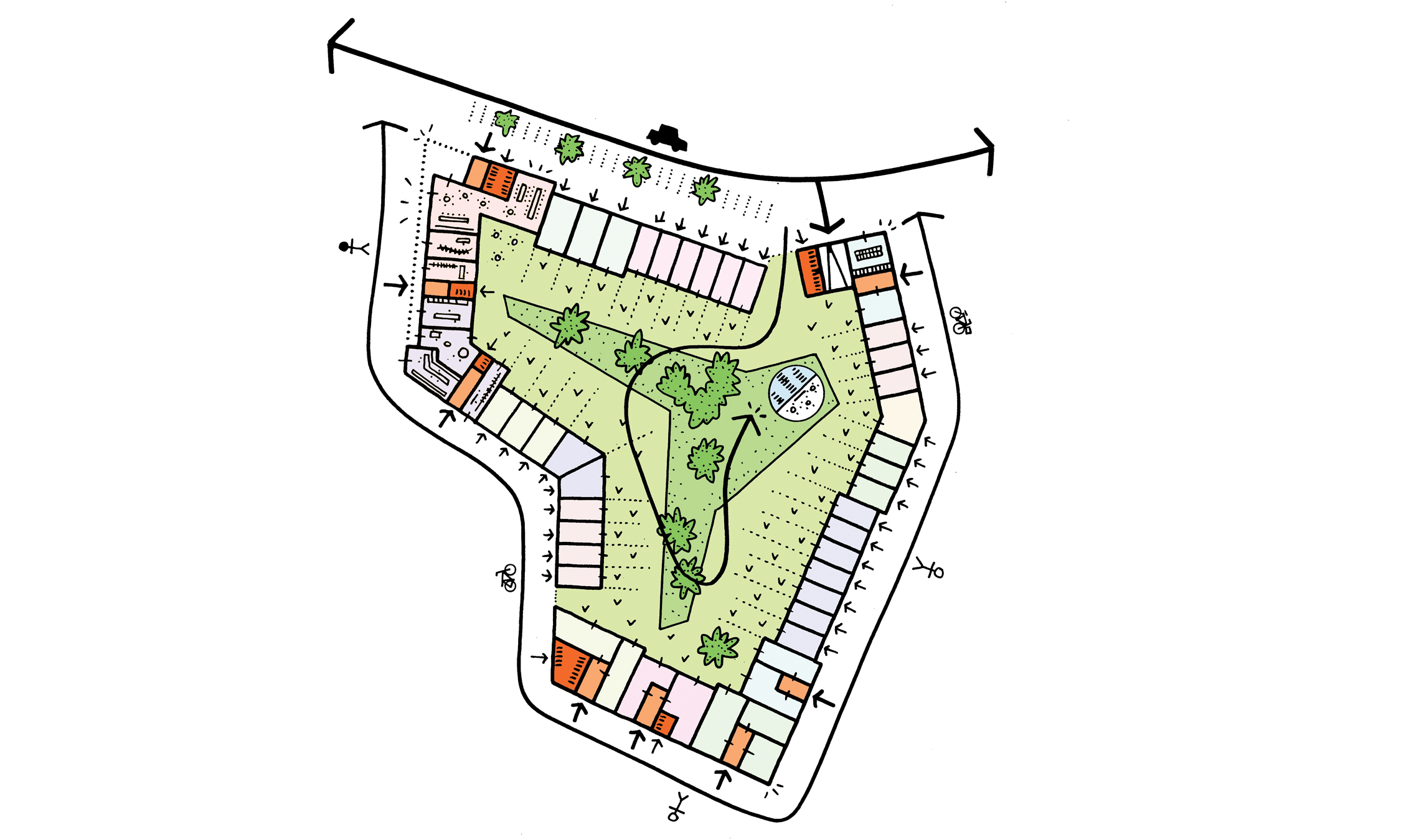
The Sugar Refinery Site maintained its mere industrial function until 2005. Today, it is transformed into a multifunctional neighbourhood, including a park, housings, and retail shops.

Competition

1st prize

Status

completed - 2023

Location

Veurne

Surface

133.000 m²

Client

ION

Team

Evert Crols, Vincent De Keyser, Isaura Doumen, Dirk Engelen, Sven Grooten, Olmo Peeters, Pieter Van Den Berge, Evelien van de Riet, Koenraad Janssen

In collaboration with

Denc! Studio, A1AR architects, Delva Landscape Architects, CroonenBuro5, Common Ground, Atelier Ruimtelijk Advies

Press

The area, flanking the Zuidburgweg, the Rodestraat and Brikkerijstraat, was renamed Suikerpark (Sugar Park) and consists of 450 residences, retail shops, an expansive city park, a recreational lake, and a lively neighbourhood square. Suikerpark thus provides a tantalizing mix of living, relaxing, and working in a green environment.

Attention to the environment goes hand in hand with equal attention to flexibility and diversity, and affordability. These qualities were pursued to the utmost by integrating a variety of building typologies – flats, terraced houses, accessible homes for those with disabilities, by applying co-housing principles and by including flexible office units and studios for arts professions. In addition, the new cycle bridge and pedestrian walkways make the centre of Veurne more accessible than ever.

Similar projects